Главная Карта сайта Написать письмо


Строительные работы  Строительный тендер


25.04.21
Зона отдыха Южная Америка
Южная Америка - континент, пересекаемый экватором, удачное география Южной Америки, создало этот удивительный край отдыха на любой вкус и кошелёк. Материк омывается Тихим и Атлантическим океанами.

27.09.20
Выбор ручек для мебели на кухню
Выбрав покрытие для стен, гарнитур и столешницу, стол со стульями, наконец купив те самые идеальные шторы и разместив на подоконнике любимые цветы, вы понимаете: чего-то не хватает.

30.01.20
Когда дешевле покупать билеты на самолет
Как говорится, вооружен тот, кто вовремя проинформирован. Начинать готовиться к поездке следует заранее, не повредит начинать изучать цены за полгода до вылета. Особенно актуальна такая ранняя подготовка для далеких трансатлантических или межконтинентальных авиарейсов.





 
Главная » Статьи о строительстве » Весна - менять обстановку

Весна - менять обстановку

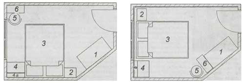
Жажда к переменам так понятна - тем более что наступила весна, когда все вокруг меняется. Конечно, хочется последовать примеру природы и изменить пространство вокруг себя. Пятиугольная комната площадью 11 кв. м с некоторым набором мебели и наличием сдерживающего фактора (трубы отопления вдоль стен) - объект не простой, но тем не менее задача эта решаемая. К сожалению, мне неизвестны размеры предметов мебели. И трубы отопления, идущие по двум стенам, здорово мешают. Но я все-таки предложу вам вот такой вариант перестановки.

Угловой диван или другая мягкая мебель должна удобно распологаться в вашей квартире и не занимать центральную часть комнаты. Диван или кресло лучше расположить в углу комнаты. Красивая мягкая мебель это всегда украшение вашего интерьера.

Поскольку высокий шкаф никак нельзя расположить возле труб, то его придется оставить на месте, а вот остальные, относительно невысокие предметы мебели попробуем подвигать по небольшому пространству. Стол-тумбу вместе со стулом передвинем к боковой стенке шкафа - это, пожалуй, единственное подходящее место для этой группы. А вот для кровати оставим центральное место в комнате, только установим ее изголовьем к окну (несмотря на трубы). На мой взгляд, такое расположение кровати в спальной более удобно (см. фото). По обеим сторонам от кровати поставим тумбу и комод, а вот книжную полку лучше повесить на стену (если она, конечно, предназначена для этого).

Но чтобы действовать наверняка, не забудьте сначала снять размеры с вашей мебели, нарисовать план комнаты. И, прежде чем двигать настоящую мебель по комнате, прикиньте перестановку на схеме. Тогда сразу станет понятно, подходит вам мой вариант или нет.

 
Последние добавленные тендеры:

Нет добавленных тендеров -------------------------




Последние добавленные статьи:

05.04.21
Мебель из массива сосны
Известно, что деревья благотворно влияют на здоровье человека. А сосну еще считают символом гостеприимства и чистых намерений. Современные производители выпускают огромное количество предметов мебели из синтетических материалов

28.10.16
Электродвигатели постоянного тока
Электродвигатели постоянного тока применяют в тех электроприводах, где требуется большой диапазон регулирования скорости, большая точность поддержания скорости вращения привода, регулирования скорости вверх от номинальной.

28.10.16
Аренда опалубки
Аренда опалубки в современном строительстве имеет хорошие экономические перспективы, отвечает всем необходимым техническим показателям и характеристикам, что вызывает повышенный спрос на данную услугу.





© 2007 Разработка и продвижение сайтов: Webzic.ru

Яндекс цитирования